
▲白一色の外観
外壁材:高性能外壁材ALC(軽量気泡コンクリート)
外壁塗装:グランロック塗装

▲夜の外観

障がい者日中サービス支援型グループホーム ふぁみーゆ諸岡は株式会社コスモスの自社建て、自社運営中です。

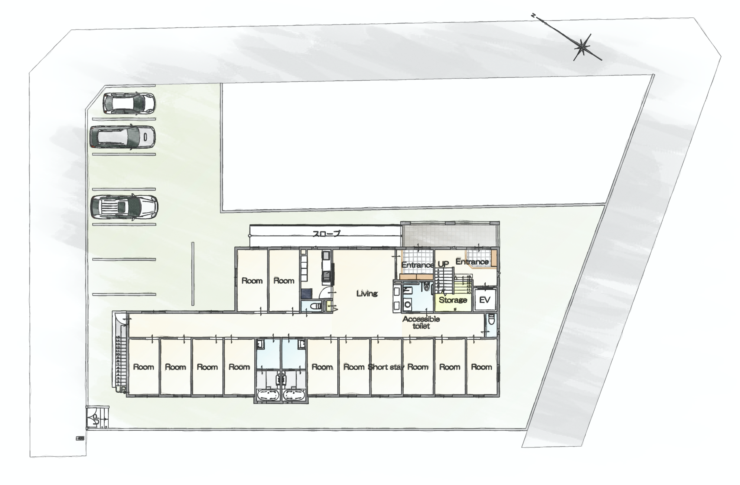
▲1階 平面図

▲2階 平面図

▲玄関ポーチ
玄関は1階、2階をそれぞれ分けており、1階は男性、2階は女性の居住エリアになっています。
玄関を分けることで、利用者様に安心して暮らしていただける設計になりました。

▲▼共有スペース:1階リビング



▲共有スペース:1階 ホール

▲▼共有スペース:1階 脱衣・洗濯室


▲共有スペース:1階 浴室 TOTO サザナシリーズ
トイレ、浴室は各階に2カ所ずつ、多目的トイレは各階に1か所設置

▲ショートステイ

▲共有スペース:トイレ

▲共有スペース:1階 多目的トイレ

▲共有スペース:2階 玄関

▲共有スペース:2階 階段ホール

▲共有スペース:2階 洗面コーナー
各階、脱衣室内とは別に洗面コーナーがあり、帰宅後や食事後の歯磨きなど、脱衣室の利用状況を気にすることなく利用できます。

▲▼共有スペース:2階 リビング

1階とは違うアクセントクロスで、女性フロアらしい優しい雰囲気に仕上げました。
▼2階 キッチン


▲共有スペース:2階 ホール

▲▼共有スペース:2階洗面脱衣室


▲共有スペース:2階浴室 TOTO サザナシリーズ


▲居室
各居室には可動式の収納棚とハンガーパイプがあり、自由に使うことができます。
また、窓際に室内物干し金物も天井についているので、洗濯物も自室で干すことができる設計。
コンパクトながらも使い勝手の良い居室です。


✼••┈┈┈┈┈┈••✼✼••┈┈┈┈┈┈••✼✼••┈┈┈┈┈┈••✼✼••┈┈┈┈┈┈••✼
私たちが運営している障がい者日中サービス支援型グループホーム「ふぁみーゆ諸岡」には、日々、スタッフやご利用者様、そしてご家族の皆様から多くのお声をいただいております。その一部をご紹介しながら、当社が自社で建築し、自社で運営することの強みについてお伝えしたいと思います。

まず、建物の設計については、運営する側の視点を重視して、施設で働くスタッフに意見を聞いたり、これまでコスモスプロジェクトでつながりのある運営会社様などからアドバイスをいただきながら計画を進めました。生活動線をできるだけシンプルかつスムーズにすることで、スタッフが動きやすく、ご利用者様にとっても安心して過ごせる空間づくりを実現しています。
また、完成した建物をご覧になった皆様からは、「インテリアがおしゃれで落ち着く」「雰囲気がとても良い」といったお言葉を多く頂戴しました。長く暮らす場所だからこそ、「新築であることが嬉しい」というご利用者様・保護者様からのご感想も印象的でした。
さらに、自社で建築計画を進めたことで、計画地も利便性の高い立地を選ぶことができました。交通量の多いエリアではありますが、外壁材にALCを採用しているため、防音性が高く、夜間も静かに過ごせるとご好評をいただいています。
実際の運営が始まると、「もっとこうしておけば良かった」という気づきも出てきます。これらは貴重な学びとして、今後のコスモスプロジェクトのご提案内容や次の自社物件の計画にしっかりと反映してまいります。
「ふぁみーゆ諸岡」での取り組みと経験を糧に、これからも安心して暮らせるグループホームづくりを進めてまいります。気になる点やご相談がございましたら、どうぞお気軽にお問い合わせください。
✼••┈┈┈┈┈┈••✼✼••┈┈┈┈┈┈••✼✼••┈┈┈┈┈┈••✼✼••┈┈┈┈┈┈••✼